Клетка для кроликов – конструкция, виды, особенности — Животный мир
В животноводстве большую популярность приобрели кролики. Выращивать их можно не только на фермах, но и в обычных жилых квартирах. Помимо хорошего ухода и правильного рациона, требуется создать максимально комфортные условия содержания. Домом для кролей послужит клетка. Приобрести ее можно в магазине или сделать своими руками из подручного материала.
Размеры и чертежи
Прежде чем браться за строительство, следует определиться, кто будет жить в домике, заготовить макет: высчитать параметры, составить чертежи, нарисовать эскизы будущей конструкции. Пол изготавливают из бруса.
Рейки выкладывают с промежутками, чтобы отходы животных сбрасывались в поддон. Боковые и заднюю стены — из досок. На передней части протягивают рабицу. Домик снабжают кормушкой, поильником, сенником.
Ясли и вход внутри обтягивают сеткой, чтобы кролики не испортили их.
Чертежи клетки для молодняка
Молодых крольчат на забой селят по 6-10, для разведения — не более 5-6. Держат в большой вместительной клетке, к которой пристраивают вольер.
Для создания точного чертежа рассчитывают минимальную площадь, которую займет одна особь. Для малышей составляет 0,15 м². В длину достигает не более 3 м, в ширину — 1 м, в высоту — 0,7 м.
Размеры загона идентичны. Пол устилают брусьями, вокруг натягивают металлическую сетку. Чтобы попасть в него, делают лаз.

Чертежи взрослого крольчатника
Для взрослых представителей единица занимаемой площади для расчета общей увеличивается до 0,5 м². Для них сооружают клетки с отдельными секциями. При необходимости делают их многоярусными, но предпочтение отдают одноярусным.
Многоуровневые сооружения труднее содержать в чистоте.
Габариты домиков зависят от породы, возраста, пола кроля. Взрослых особей заселяют по 3 в одиночную секцию, в двойную — 5-6 экземпляров. Размеры секции: 0,8-1,1 м, для двойной вся длина 1,3 м; минимальная глубина 0,6 м.
Молодняк самцов, достигший трехмесячного возраста, делят на две группы: забойных кастрируют и селят вместе, племенных рассаживают по одному. Для породистых кроликов изготавливают домики с габаритами 0,7 х 0,7 х 0,6 м.
Варианты чертежей, все картинки кликабельны, нажмите, чтобы увеличить:
Двухъярусный шед
Представляет собой сооружение из секций, построенных в несколько уровней. Такие конструкции используют в уличном содержании. Устанавливают на высоте 0,6 м от земли.
Для постройки фундамента используют бетон, чтобы надежно закрепить конструкцию. Общая длина достигает 2 м, ширина — 1 м. Все ячейки в шеде одинаковые, стоят вплотную друг к другу, прикрыты навесом. Снизу организуют поддон для отходов.

Преимущество такого содержания заключается в том, что животные всю весну и лето проводят на свежем воздухе. Чистка домиков не занимает много времени и сил.
Варианты чертежей двухярусных шедов, кликните по картике, чтобы увеличить ее:
Размеры крольчатника с маточником
Переносной домик для беременной или кормящей самки и малышей строят отдельно от других сооружений. Чтобы рассчитать занимаемую площадь, за единицу берут 0,7 м². Стандартные габариты:
- длина — 1,2 м;
- ширина — 0,6 м;
- высота — 0,7 м.
Маточник делают с отдельной дверцей или выдвижной, его параметры: 0,4 х 0,7 х 0,6 м. Лаз 0,2 х 0,2 м. Каркас готовят из фанеры, в два слоя, между которыми прокладывают утеплитель.
Для зимнего варианта пол делают с подогревом: между слоев прокладывают грелку, шнур для подключения к сети выводят наружу, чтобы животные не сгрызли его. Крышу покрывают водоотталкивающим материалом.
Чертежи крольчатника с маточником, кликните по фото, чтобы увеличить его:
Двухместные клетки
Используют для размещения нескольких животных. По бокам к ним пристраивают гнездовое отделение. Каркас строят из досок, пол в кормовом отделе покрывают сеткой, в маточном — брусом. Для грубого корма на передней стене делают ясли. Поилку и кормушку подвешивают на дверце.
Параметры:
- длина 2,1-2,4 м;
- ширина 0,7 м;
- высота фасада — 0,5-0,6 м, со скосом к задней стене, у которой она составит 0,4 м.
Чертежи крольчатника Золотухина
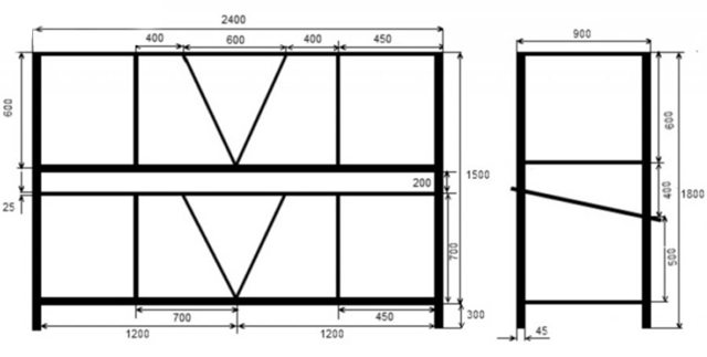
Николай Иванович Золотухин долгие годы изучал поведение и образ жизни кроликов в дикой природе. На основе проработанной информации он разработал сооружение для комфортного размещения животных в домашних условиях. Это трехъярусные клетки с параметрами:
- длина 2 м;
- ширина 0,8 м;
- высота 1,5 м;
- пол от заднего фасада на 0,2 м покрыт металлической сеткой, уклон от передней стены к нему равен 0,05 м;
- квадратные двери, длина стороны 0,4 м.
Варианты чертежей по Золотухину. Кликните по картинке, чтобы увеличить ее:
Для строительства потребуются:
- деревянные доски, брусья;
- рабица или сетка из металла;
- листы железа;
- шифер;
- поликарбонат.
- Схема построения:
- Изготовление каркаса по стандартному методу, разделение на две части с промежутком между ними. Туда помещают сенник.
- Пол покрывают шифером, отступая от заднего фасада 0,2 м. На этот участок натягивают сетку.
- Задник закрывают поликарбонатом. Листы устанавливают под определенным углом, направляют к окончанию шифера верхнего яруса. У самого последнего этажа лист будет прямой. Это служит для облегчения чистки клеток. Отходы через сетку в полу скатываются в поддон по задней стенке.
- В случае с гнездовым отсеком, дверь делают из досок с утеплителем между слоями. В основной части — из сетки.
- Стены в летнем отсеке также делают из сетки, отделяют его перегородкой. В зимнее время ее убирают и получают большой домик для содержания молодых особей.
- Кормушку крепят на переднюю стенку, внутри находится одна третья часть. Дно сделано под углом, чтобы ее можно было наполнять снаружи, не беспокоя животных. Поильник устанавливают внутри.
Крольчатник Михайлова
Еще одна модель принадлежит известному кролиководу Игорю Николаевичу Михайлову. В основе лежит разделение помещения на три секции верхнюю, нижнюю, подставочную.
Каждая из них выполняет свою функцию: верх — это ярусы, где обитают животные. Низом служит поддон для сбора и хранения испражнений. Подставочная часть предназначена для фиксации строения.
Варианты чертежей крольчатника Михайлова. Кликните по любой картинке, чтобы увеличить ее:
Размеры конструкции:
- длина полная 2,4 м, для одной секции составляет 0,6 м;
- ширина 0,6 м;
- высота1 м, в том числе верхней части 0,7 м;
- длина маточника 0,4 м, ширина — 0,35 м;
- для конусной части, предназначенной для сбора отходов, четких размеров нет.
Корпус изготавливают из железа, для утепления внутри оббивают деревом. Рамное основание служит для устойчивости конструкции. Его высота составляет 1,4 м.
Размер клеток в зависимости от породы
Породистые кролики Великаны — крупный вид с внушительными параметрами: в длину они вырастают от 55 до 65 см, их вес от 5,5 кг до 7,5 кг. Исходя из этого, клетки для них должны быть особенные.
Для одной взрослой особи габариты будут следующие: длина 95-100 см, ширина 70 см, высота 60-70 см. Для молодняка общая площадь постройки составит не менее 1,2 м², высота 40 см. Особое внимание следует уделить полу. Его застилают плотной сеткой толщиной 2 мм. Под низ укладывают бруски толщиной 35-40 мм с промежутками для сбора испражнений.
Если кладка выполнена плотно, то в домик ставят поддон, убирают который каждый день.
Калифорнийский кролик — селекционная порода, неприхотливая к условиям содержания, жесткая шерсть у них на лапах позволяет выстилать пол сеткой или решеткой. Размеры особи тоже менее внушительны, весить они могут от 4,5 до 5 кг. Площадь 0,4-0,5 м².
Для представителей породы, которых держат ради мяса, в качестве дома иногда вырывают яму размером 2 х 2 м и глубиной 1 м. Стены укрепляют шифером, пол выкладывают досками или сеткой. Сверху окружают заборчиком и делают крышу. Отдельно роют небольшую ямку, которую ничем не укрепляют. В таких естественных условиях кроли лучше размножаются и самостоятельно выращивают потомство.
Клетки с закладками для кормов
Для откорма строят клетки с габаритами:
- длина 0,7 м;
- ширина 0,5 м;
- высота 0,3 м.
Чертежи клеток с кормушками, все фотографии кликабельны, нажмите, чтобы увеличить:
Конструкцию изготавливают из проволоки диаметром 6 мм, более тонкой обматывают места соединений для их фиксации. Для подачи воды используют сосковые поилки, корм держат в маленьких кормушках. Откармливают кролей в течение недели.
Источник: https://MrHvost.com/razmery-kletok-dlya-krolikov
Клетки для кроликов – устройство конструкции, что должно быть внутри, особенности разных видов
В занятии кролиководством важным аспектом успеха являются правильно выбранные клетки для кроликов. От конструкции места обитания животного зависит скорость размножения и здоровье пушистых, удобство ухода за ними. Существуют разные варианты обустройства таких домов по форме, размерам и другим параметрам.
Устройство клетки для кроликов
Проблема выбора клетки для кроликов встает только перед начинающими крольчатниками. Опытные хозяева уже знают все особенности разведения и подстраивают конструкцию под свои нужды. Кроличьи клетки могут быть построены по следующим схемам:
- Одноэтажные. Это одноярусный домик, который устанавливается на подставке на высоте примерно 75 см от земли. Крыша выполняется из любого кровельного материала односкатной конструкции. Под полом или на полу монтируется поддон для отходов.
- Многоэтажные. Чаще такие сооружения бывают двух или трехъярусные. Ячейки располагаются в несколько этажей друг над другом. Высота первого ряда составляет не менее 50 см в помещении и порядка 70 см на улице. Каждая ячейка в обязательном порядке снабжается поддоном для отходов.

Что должно быть в клетке кроликов?
При первой постройке или покупке важно учитывать конструкцию и то, как обустроить клетку для кролика. В каждой ячейке обязательно нужно организовать:
- Поддон для отходов. Его можно располагать под сетчатым дном для удобства уборки, или в самой клетке. Тогда процесс ухода будет занимать больше времени. Многие опытные кролиководы делают его с обязательным уклоном для разделения жидких и твердых отходов.
- Кормушки. Конструкция отделения для корма должна быть удобна хозяину и самим питомцам. Идеально, когда в нее можно быстро разместить корм так, чтобы все кролики могли лакомиться одновременно.
- Поилки. Простая миска с водой может легко перевернуться, и вода просто выльется. Лучше обустраивать автоматические системы подачи воды с ниппелем или вакуумом.
- Маточники. Это специальные клетки для самок кроликов, закрытые от сквозняков и утепленные места, в которых проходят роды и выращивается молодняк. Устанавливается не во все конструкции, а только в те, которые предназначены для родов и выхода молодняка.
Виды клеток для кроликов
В зоомагазинах, специальных фермерских рынках можно встретить много разных видов помещений для содержания кроликов. По объемам производства они делятся на:
- Промышленные клетки для кроликов, в которых разведение поставлено на поток. Такие конструкции имеют автоматизированные системы сбора отходов и подачи воды.
- Изделия для использования в личных подсобных хозяйствах, где объемы выращивания существенно ниже.
- Клетки для декоративных питомцев, пригодные для содержания живности даже в условиях городской квартиры.


По месту расположения изготавливают:
- Клетки для кроликов для уличного содержания, которые подходят регионам с относительно мягкими зимами.
- Ячейки для помещений, будь то сарай или специализированный крольчатник.

По назначению бывают:
- Для окрола. Это те самые разновидности со специальным маточником, в которые помещаются беременные самки.
- Для молодняка, в котором содержатся крольчата от 3 до 5 мес. Таких особей вместе содержат примерно 8-20 шт. из расчета, что на каждого должно приходиться примерно 0,25 м² свободной площади.
- Для взрослых кроликов, в которых часто содержатся самцы и не беременные самки.
- Клетка с вольером для выгула. В таких конструкциях два отделения соединены специальным проходом с крышкой, которую владелец может открывать и закрывать при необходимости.
Как выбрать клетку для кроликов?
Перед покупкой или самостоятельным изготовлением клеток для кроликов, важно определиться с основными параметрами будущего сооружения:
- Назначение. Покупаются ячейки для декоративного питомца или разведения для продажи.
- Размеры будущего кроличьего дома. Они зависят от породы животных, возраста планируемого количества содержания в одной ячейке.
- Материал изготовления. Уличные клетки для кроликов должны быть более прочными, выдерживать осадки и перепады температур, от которых важно защитить и животных в непогоду. К домикам в помещении предъявляются менее строгие требования.
- Удобство использования конструкции.
- Цена и производитель.
Одним из самых важных параметров выбора являются размеры ячеек будущего крольчатника. Рекомендации здесь следующие:
- Ячейка для малышей должна быть в длину 120-160 см, а в ширину 80-100 см. высота редко делается выше 35 см в такой вольер помещают 1-2 десятка молодняка.
- Взрослые клетки изготавливаются длиной примерно 1 м и шириной 60-80 см, высота составляет от 35 см. В таких ячейках на каждую особь должно приходиться не менее 0,5 м².
- Большая клетка для кролика размерами 150х100х50 см строится для животных крупных пород, например, Великана, или пары особей, которая будет проживать вместе.

Материалы для клеток для кроликов
При выборе материалов для будущих конструкций стоит учитывать следующие нюансы:
- Каркас строят из деревянного бруса или несущего оцинкованного профиля. Встречаются и сварные каркасы из металлических труб, которые имеют самый большой вес и цену.
- Стены выполняют из фанеры, деревянных досок и планок, ОФБ, металлической сетки. Деревянные клетки для кроликов должны иметь минимальное количество выступающих частей, ведь питомцы любят грызть дерево.
- Пол лучше изготавливать двойной: первый этаж из деревянных планок или металлической сетки с небольшим диаметром ячейки, а второй сплошной с небольшим уклоном для удобства сбора мочи и экскрементов.
- Двери чаще изготавливают сетчатыми. Металлическая сетка натягивается на деревянный или металлический каркас.
- Крыша изготавливается из любого кровельного материала, который предупреждает перегрев или переохлаждение поголовья. Например, влагостойкая фанера или волновой шифер.
Клетка для декоративного кролика
По своей конструкции клетка для домашнего кролика отличается от промышленных аналогов. Она может иметь пластиковое дно и металлические стены, крышу и дверцу.
В ней обязательно должен быть сенник для свежего сена, удобная кормушка и поилка с непробиваемым механизмом.
Домашним любимцам оборудуют уютное место для сна и отдыха, зону игры, в которой размещают самодельные или покупные игрушки.

Как сделать клетку для кроликов?
Процесс создания клеток для кроликов своими руками состоит из следующих этапов:
- Разработка чертежа, в котором отмечается этажность, формы и размеры будущего сооружения. Можно создать нужный чертеж самостоятельно или воспользоваться готовыми вариантами. У профессиональных фермеров популярны трехъярусные клетки для кроликов Золотухина или разновидности Михайлова с маточником и специальным конусообразным отсеком для сбора отходов.
- Расчет нужного количества материалов и фурнитуры.
- Сборка и монтаж каркасных рам.
- Установка дна с системой сбора отходов или рельсами для поддонов.
- Монтаж стен и крыши.
- Изготовление маточника и кормушек.
- Монтаж и установка дверей.
Где поставить клетки для кроликов?
Месторасположение двухъярусных клеток для кроликов выбирают, с учетом таких нюансов:
- Уличные конструкции применимы для южных регионов с теплыми зимами, в которых с определенным уровнем утепления животным будет комфортно в любую погоду. Такие конструкции лучше ставить под навес или в тени большого дерева.
- Круглогодичные варианты для специального помещения, будь то сарай или крольчатник. Менее требовательны к материалам и утеплению.
- Встречаются и легкие переносные конструкции, которые в теплое время года можно ставить на свежем воздухе, а на зиму заносить в оборудованное помещение.
Чем дезинфицировать клетки кроликов?
Обязательной процедурой в уходе за кроликами считается дезинфекция всех поверхностей. Она проводится планово минимум дважды в год, перед переселением молодняка ко взрослым особям, во время подготовки ячеек для окрола и в момент наступления эпидемии. Дезинфекция клеток кроликов в домашних условиях может проводиться:
- Обильным количеством воды с использованием кальцинированной соды. Это первый этап очистки всех поверхностей.
- Огнем. С помощью паяльной лампы или газовой горелки устраняются пух и многие болезнетворные бактерии.
- С помощью специальных химических реактивов. В ветеринарии рекомендованы следующие препараты: Виросан, Глютекс, Делеголь, Диабак-Вет.
Источник: https://womanadvice.ru/kletki-dlya-krolikov-ustroystvo-konstrukcii-chto-dolzhno-byt-vnutri-osobennosti-raznyh-vidov
Клетки для кроликов
Каждый заводчик, занимающийся длительное время разведением кроликов знает, что клетка для животного должна быть удобной, практичной, просторной и многофункциональной.
Добиться всего этого трудно покупая ее в магазине, поэтому в большинстве заводчики стараются делать клетки для кроликов самостоятельно.
Ниже в статье описано, какие виды клеток существуют, особенности конструкций Золотухина и методология их построения.
Какие виды клеток для кроликов бывают?

Обычная конструкция, клетки Михайлова, клетки Золотухина
Существует три основных типа клеток для кроликов. Каждый вид отличается особенными новшествами, поэтому в зависимости от ситуации и потребностей можно легко определиться с тем, какую клетку выбрать.
- Обычные конструкции. Это наиболее типичный и доступный вид, но, увы, не всегда практичный. Такие конструкции имеют ножки, два места для кормления и гнезда, отделенные «коридорчиком» и дверцы.
- Клетки Михайлова относят к промышленному типу. Они самые сложные в построении, но и наиболее удобные как для кролей, так и для заводчика. С виду они немного напоминают небольшую ферму с вентиляцией, полочками, подогревом маточника, поилок, а также системой удаления отходов!
- Клетки для кроликов Золотухина пользуются наибольшим спросом потому как сочетают в себе удобство, простоту и практичность. В этих конструкциях есть все нужное для живности, кролики чувствуют себя там как дома – меньше нервничают, пугаются, ведут нормальный, размеренный образ жизни.
Кроме того, клетки бывают с вольером или без него. Изначально можно соорудить клетку без выгула, а потом его достроить – это удобно и не займет много места, а вот для кролика станет приятным сюрпризом.
Клетки Золотухина и их особенности

Клетки Золотухина
Из всех типов конструкций, именно клетки для кроликов Золотухина пользуются заслуженной популярностью среди заводчиков. Золотухин Николай Иванович – фермер с большим стажем, который долгое время наблюдал за этими животными.
На основе своих наблюдений он создал клетку, которая максимально приближена к натуральным условиям жизнедеятельности этих грызунов (насколько это вообще возможно).
Научно доказано, что в клетках Золотухина кролики ощущают себя намного лучше, свободней, активней плодятся и реже болеют.
Особенности клетки Золотухина.
- Сетка и поддон исключаются. По мнению Золотухина животные испытывают неудобства из-за сетки на полу, поэтому пол делается из шифера или дерева за исключением небольшого участка у задней стенки домика. Там кладут сетку (небольшой участок). Ходят в туалет кролики в 90% случаев именно у задней стенки (там, где будет сетка), а так как пол располагается под небольшим углом, 80% отходов будут выкатываться в сторону решетки и проваливаться в нее.
- Конструкция является красивым, трехъярусным домиком, рассчитанным на 6 особей.
- Кормушка подвижная и легко очищается. Она крепится к дверце клетки так, что одна часть находится снаружи, а вторая внутри клетки для кроликов. Это позволяет подсыпать корм в любое время, не тревожа зверей.
- Стационарный маточник отсутствует. По сути, в нем нет надобности на протяжении всего года – это временное жилище самок, поэтому Золотухин сделал маточник временным. Он обустраивается в затемненной части клетки и отгораживается брусом. В эту затемненную часть укладывается солома и самка может сама из нее делать свое гнездо. А вот когда крольчатам исполняется 1 месяц, гнездо убирается.
Преимущества клеток Золотухина
Если говорить про достоинства такой конструкции, то тут, безусловно, можно перечислить много пунктов:
- небольшая себестоимость;
- удобство обслуживания помещения и доступа к кроликам;
- нормальное освещение;
- постоянное проветривание с полным исключением сквозняков;
- «домик» компактный;
- такую клетку легко сделать своими руками.
Материалы для кроличьих клеток

Стройматериалы
У всех клеток одна основа: стены, пол, крыша, входы и выходы, каркас. Исходя из этого, нужно приобретать тот или иной материал для постройки.
Важно!
Клетки для кроликов, как правило, строят из дерева и металлической сетки. Железо, пластик, а также стекло могут быть очень опасными в данной конструкции, поэтому их используют только для изготовления небольших деталей – не более.
- Каркас обычно делается из деревянных брусьев, чтобы «домик» был надежным.
- Стены можно соорудить из сетки, если клетка летняя, а вот для зимы лучше использовать древесину, фанеру, чтобы воздух не пропускала. Но чаще всего эти материалы комбинируют.
- Деревянные ножки – необязательны, если клетки маленькие, но желательны. Причем если клетка стоит на улице, то они должны быть около метра.
- Пол рекомендуется сооружать из сетки или дерева.
- Крыша должна быть надежной. В случае, когда клетка стоит под открытым небом, а не в крольчатнике, нужно позаботиться также и о кровле (шифер, мягкий шифер, рубероид), чтобы во время дождя вода не лилась внутрь.
Первые этапы создания клетк

Этапы создания клетки
До того как приступать к сооружению клетки для кроликов, важно уточнить некоторые самые важные моменты и все приготовить.
- Размеры. Важно заранее знать, какого размера будет клетка, чтобы не прогадать. Желательно сделать чертеж с точными размерами или найти готовый – это позволит избежать многих ошибок.
- Место, где будет расположена клетка. В зависимости от того, где она будет находиться, могут меняться размеры, некоторые материалы. Так, на открытой местности нельзя ставить решетчатую клетку (из-за сквозняка), на улице ставят исключительно «домики» на ножках, а в помещении нужны небольшие конструкции, чтобы было легко их ставить.
- Количество, размер, тип кроликов. В зависимости от этих факторов может потребоваться большая или маленькая клетка – это очень важно знать заранее.
Как сделать клетку для кроликов своими руками?

Клетку для кроликов своими руками
Клетки для кроликов могут иметь разнообразный дизайн – в интернете очень много идей, поэтому не обязательно делать скучную, банальную конструкцию, тем более если ставиться она будет на открытой местности (у всех на обозрении). Если же говорить про основу, то тут нет ничего сложного. Ниже представлена пошаговая инструкция изготовления клетки для кроликов по методу Золотухина.
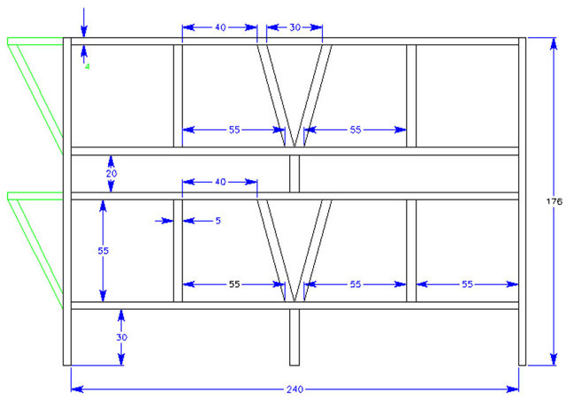
- Каркас делается из балок длиной 2 м (5х5 см) закрепленных поперечными балками по 0,9 м. Первый этаж располагают на высоте 50 см от земли, расстояние между последующими этажами такое же. Всего нужно 3 этажа.
- Пол 3 этажей покрывается шифером или древесиной, но не полностью (чтобы до задней стенки материал не доходил на 17-20 см, там будет делаться сетчатый пол). Кладется он с небольшим уклоном (чтобы мусор скатывался в решетку). Уклон же можно обеспечить, уложив на передней стороне домика (на полу) балку – она поднимет уровень спереди.
- У задней стенки, где не был доложен пол, закрепляют сетку с мелкими ячейками прямо к балкам.
- Все этажи делятся рейками на 2 части, чтобы отделить сенники. Между рейками соблюдают расстояние в 25-30 см.
- Задняя стенка создается из поликарбоната или подобного материала, который сможет выдержать высокую влажность. Делаются все задние стенки под небольшим углом (за исключением верхнего этажа) – от низа пола снизу, до места состыковки сетчатого и деревянного пола сверху. Этот наклон нужен для того, чтобы сетчатая часть пола выходила наружу, а не попадала внутрь (на этаж ниже).
Важно!
Все элементы в клетке для кроликов должны быть гладкими и полностью безопасными, чтобы животное не поранилось об острый угол, выступающую щепку или опасную деталь сетки.
- На передней части домика делают стенку с дверцами шириной не меньше 45 см. Дверь должна быть прочной, из хорошего материала, чтобы не пропускала свет. Двери делаются и с двух сторон конструкции, для летнего маточника.
- Рядом крепится рама для отделов выгула и откорма. Они делятся на части и закрепляются решетками. На всех дверцах нужны задвижки.
- Боковые стены делают из ДСП или древесины.
Интересно!
Деревянные уголки внутри клетки лучше всего покрыть листовым металлом, чтобы кролики их не сгрызли.
- Крыша ставится под небольшим углом. Она должна выступать со всех сторон на 5 см. Можно использовать для нее рубероид, шифер или подобный кровельный материал.
- Маточник строится отдельно. Это простое 3-стенное помещение с крышей и полом из дерева. Боковая часть (вход) должен быть отделен брусом высотой 17-20 см, чтобы крольчиха могла через него перепрыгнуть, а крольчата – нет. Этот брус обязательно обшивается металлом (чтобы не сгрызли).
- В клетку на двери устанавливаются кормушки, а также вода (ниппельная поилка).
- Сенники строятся буквой V. И крепятся при помощи задвижек или крючков (до которых не смогут добраться кролики).
Теперь клетка готова можно заселять кроликов. Только важно сначала проверить все детали, убедиться в отсутствии опасных, острых деталей, чтобы животные случайно не укололись и не оцарапались о них.
Источник: https://fermerok.info/kletki-dlya-krolikov
Клетка для кролика: какие разновидности бывают, размеры, материалы, расположение
Клетки для разведения кроликов можно не только купить, но и сделать своими руками. Главное, чтобы «дом» для пушистых зверьков был максимально комфортным, тогда животные будут быстро расти и хорошо прибавлять в весе. Клетки для домашних кроликов бывают самыми разными, на любой вкус и кошелек.
Какой должна быть конструкция
В продаже имеется огромное количество разнообразных клеток. Конструкция может быть как одноярусной, так и состоящей из двух или более ярусов. Вот основные требования к конструкции любого жилища для кроликов:
- Крыша обычно делается из шифера;
- Пол поднимается на 80 см от земли;
- У многоярусных клеток ярусы располагаются четко один над другим;
- Более трех ярусов делать не стоит, так как это небезопасно.
Клетки, состоящие из нескольких ярусов, имеют и другое название — «шеды». Шеды, предназначенные для окрола, содержания молодняка и взрослых животных имеют незначительные отличия в конструкции.
Но общий принцип остается без изменений: пространство делится на зоны при помощи ячеек, отделенных друг от друга перегородками. Количество ярусов зависит от поголовья кроликов. На дно подстилается дополнительный утеплитель.
Все деревянные элементы и аксессуары должны быть сделаны из самых прочных пород дерева, чтобы животные их не прогрызли.
При выборе клеток промышленного производства не стоит приобретать европейские домики, следует отдать предпочтение отечественным, так как в Европе разводятся другие породы кроликов, и жилье для животных делают по другим стандартам. Лучше купить простейшие жилища, ориентированные на российских животноводов, или самостоятельно сконструировать клетки, например, по методу Золотухина.
Размеры клетки для кроликов рассчитываются, в зависимости от породы и численности поголовья.
Виды клеток
Почему кролики грызут клетки и что делать
Бывает, что человек давно решил разводить кроликов, но никак не может выбрать место для их содержания. Начинающий кроликовод может легко растеряться в изобилии различных видов клеток. Как правило, в российских фермерских хозяйствах используются следующие разновидности:
- Клетки, предназначенные для окрола самки;
- Помещения для выращивания молодняка до достижения половой зрелости;
- «домики» для взрослых особей;
- Помещения, снабженные вольером, с возможностью выгула;
У каждого вида имеются свои преданные сторонники. Также совершенно особые клетки делают для животных, принадлежащих к породам Великан и Калифорнийская.
В зависимости от того, для кого именно предназначено жилище, клетки имеют разный размер и различное внутреннее устройство. Изготовить клетку любого вида самостоятельно можно, используя чертежи и схемы из интернета.
Также хорошие идеи для начинающих кролиководов можно почерпнуть из старых советских журналов «Приусадебное хозяйство».
Авторские конструкции клеток тоже пользуются большой популярностью. Среди них следует отметить клетки, изготовленные по методу Михайлова и жилища для животных «по Золотухину». Такие клетки для кроликов значительно удобнее и компактнее, чем покупные.
Клетки по конструкции Н. И. Золотухина
Большой популярностью у отечественных фермеров пользуются клетки, разработанные Н. И. Золотухиным. Вот их основные отличительные особенности:
- Помещение для содержания животных состоит из трех ярусов;
- В одной клетке живет 6 кроликов;
- Пол сделан из дерева или шифера, на полу нет сетки, также отсутствует поддон;
- Маточник можно убирать и переносить с места на место.
Домики для животных, изготовленные по этому образцу, отличаются компактностью, недорого стоят, их можно легко изготовить своими руками из подручных материалов.
Также их очень легко чистить, что заметно упрощает уход за животными. Такие «домики» будут уместны как на маленькой ферме, так и на подворье с большим поголовьем.
Изготовление клеток по методу Золотухина в домашних условиях не займет много времени при наличии базовых навыков столяра и плотника.
Клетки по конструкции Н. И. Золотухина
Шеды для кроликов
В переводе с английского слово «шед» означает сарай. Шед, по сути — это конструкция из двух — трех ярусов клеток, установленных под одним общим навесом. Вот основные особенности шедов:
- Основа из металла или прочного дерева;
- Сетчатые клетки;
- Размеры 60×3 м;
- Автоматическая подача пищи и жидкости для животных.
Разведение кроликов в яме
Один шед рассчитан на 500 особей, но если кроликовод делает постройку своими руками, размеры могут быть и другими, все зависит от численности поголовья. Шед дает хорошую защиту от ветра и солнца; в клетках такого плана легко поддерживать требуемую температуру и влажность воздуха. Это действительно универсальное жилище, подходящее как для молодняка, так и для взрослых особей.
Важно! Если шед стоит на улице, навес должен быть особенно прочным, чтобы в домики не попадала уличная пыль.
Шедовое содержание кроликов имеет много преимуществ: доступность, удобство и простота ухода за животными. Сделать шед для кроликов своими руками очень просто.
Вольеры
Также содержать животных можно в вольерах. Основной плюс этих сооружений в том, что кролики в вольере живут почти так же, как в природе. Вот основные особенности вольеров:
- У животных много свободного пространства;
- Отсутствует необходимость в автоматических кормушках;
- Кроличий помет, смешанный с травой и землей, дает дополнительное утепление;
- Чистить вольер можно не чаще, чем раз в квартал.
Вольер — это, по сути, даже не клетка, а всего лишь место, огороженное сеткой-рабицей. Но, несмотря на многочисленные плюсы, у вольера есть и серьезный недостаток: в условиях вольерного содержания животные могут быстро заразиться друг от друга опасными инфекциями.
Однако многие фермеры считают вольер наиболее удобным жилищем для пушистых зверьков. Для того, чтобы сделать вольер, искать в интернете чертежи и схемы необязательно, достаточно вбить колышки по периметру участка и обтянуть место содержания животных прочной сеткой с мелкими ячейками.
Но все-таки шеды для кроликов лучше, чем вольеры, особенно в регионах с холодным климатом.
Навесы
Многие кролиководы успешно содержат свое поголовье под навесом. Навес позволяет содержать животных на свежем воздухе, но при этом кролики будут надежно защищены от дождя, ветра и солнца. К навесу предъявляются следующие требования:
- Он должен быть расположен четко над клетками;
- Нужно сделать навес так, чтобы к клеткам можно было подойти с двух сторон;
- Лучший материал для навеса — поликарбонат;
- Крыша должна располагаться немного под углом для того, чтобы внутрь не попадал дождь.
Расположение клеток под навесом
Также следует заранее предусмотреть возможность вентиляции и защиты от сквозняка, так как кролики легко простужаются, сквозняк может стать причиной массовой гибели поголовья. Конструкция навеса должна быть самая простая, но надежная. Искать в продаже навесы промышленного производства не стоит, так как их самостоятельное изготовление обойдется намного дешевле.
Двухъярусные клетки
Если поголовье небольшое, для содержания животных хорошо подойдут клетки, состоящие из двух ярусов. Ниже представлены их основные особенности:
- Ширина до 1,5 м;
- Высота 1,9 — 2,1 м;
- Конструкция состоит из нескольких отдельных секций;
- Клетка рассчитана на 4 особи;
- Секции разделяются своеобразным «коридором» в форме буквы V.
Для того, чтобы было легко удалять помет, можно создать дополнительный зазор между двумя «этажами». В этот зазор помещается поддон для помета. Если дом для кроликов будет стоять в гараже или сарае, достаточно покрыть его сеткой-рабицей.
Если же клетка будет стоять на улице, у нее должны быть сплошные стенки. Снаружи дерево можно обработать составом, устойчивым к влаге и плесени. Конструкции, состоящие из двух ярусов, подойдут для содержания кроликов любых пород, включая великанов.
Главное — регулярно чистить помещение, иначе животные будут часто болеть и могут погибнуть.
На заметку! Двухъярусные жилища также подходят для содержания нутрий.
Клетки для крольчих с маточником
В период окрола самки требуют повышенного внимания. В это время крольчихи могут проявлять агрессию, поэтому они должны содержаться отдельно. Для этого используют специальные клетки с маточником.
Конструкция такого домика отнюдь не оригинальна и представляет собой своеобразное «гнездо» для матери и новорожденных детей. Крольчонок должен чувствовать себя максимально комфортно.
Они отличаются следующими особенностями:
- Помещение оборудовано отдельным местом для родов и кормления детенышей;
- В качестве утеплителя подойдут опилки. Главное, чтобы они находились вне зоны доступа животных;
- Если клетка достаточно просторна, маточник размещается внутри;
- Если в клетке тесно, к передней стене крепится брусчатая основа, которая потом обтягивается сеткой.
В регионах с холодной погодой под полом можно установить источник дополнительного обогрева. Главное — соблюдение правил пожарной безопасности. Если самка содержится на улице, у клетки обязательно должен быть навес. Внутри желательно полное отсутствие металлических деталей и аксессуаров.
Если фермеру нужна клетка для крольчихи с маточником, размеры жилища зависят от «габаритов» конкретной самки. Главное — чтобы крольчихе было просторно, а не тесно.
Материалы для изготовления клеток
Чтобы сделать своими руками дом для кроликов, можно использовать практически любой материал. Какой материал выбрать зависит от финансовых возможностей фермера. Дешевле всего обойдется пластик, металл и дерево будут дороже. В настоящий момент отечественные фермеры предпочитают следующие варианты:
- Дерево в сочетании с сеткой-рабицей;
- Поликарбонат, который используется также для теплиц и парников;
- Металл;
- Пластик.
Если в конструкции используется металлическая сетка, ее нужно закреплять при помощи реек из дерева или пластмассы.
Важно! Все детали, сделанные из дерева, которые находятся внутри клетки, должны быть без острых углов и зазубрин, чтобы животные не могли нанести себе травму. Нельзя использовать легко воспламеняющиеся материалы, например, некоторые разновидности пластика.
Для пола обычно используется дерево или сетка. Дерево хорошо сохраняет тепло, а сетчатые полы удобно чистить. Металл при изготовлении пола не используется, иначе животным будет холодно. Если животные содержатся на улице, деревянные стенки можно оцинковать для утепления и в качестве защиты от влаги.
Как выбрать сетку
Сетка для кроликов — одна из основных статей расходов начинающего фермера. Выбрать сетку для изготовления «домика» непросто. Вот основные требования, которые должны соблюдаться:
- Прочность материала, из которого изготовлена сетка;
- Небольшой размер ячеек;
- Сетка должна надежно крепиться;
- Желательно, чтобы для крепления не использовалась металлическая фурнитура.
Важно! Для изготовления крыши рабица не используется, потому что даже самые мелкие ячейки будут пропускать внутрь осадки.
Сетка используется не только для отделки стен и загородки вольеров, но также для изготовления пола. Благодаря сетчатому полу помет будет легко проваливаться сквозь ячейки, что значительно облегчит уборку.
Покупать клеточную сетку лучше в специализированных магазинах для животноводов и фермеров.
Особенности местоположения клеток
Кролики — довольно уязвимые животные, поэтому их здоровье и развитие во многом зависит от того, где расположена клетка. Вот основные требования к месту содержания животных:
- В помещение не должны проникать прямые солнечные лучи;
- Не стоит размещать клетки в подвалах, так как там часто бывает повышенная влажность воздуха, зверьки от этого болеют;
- Огороженный вольер должен располагаться в месте, где не растут ядовитые растения;
- С севера и запада должна быть глухая стена, это необходимо для защиты от холодных ветров.
Если учитывать все приведенные выше требования, животные будут хорошо расти и быстро прибавлять в весе.
Также нельзя располагать клетки и вольеры в непосредственной близости от места содержания собак, так как кролики — пугливые животные, а у собак ярко выражен охотничий инстинкт.
Если пес вдруг сорвется с цепи, он непременно захочет полакомиться кроличьим мясом, поэтому не стоит намеренно провоцировать собаку, размещая животных у нее под боком.
Тем, кто только начинает разводить пушистых грызунов, лучше всего использовать клетки промышленного производства. Более опытные фермеры вполне могут сконструировать простейшие домики самостоятельно, воспользовавшись подручными материалами и чертежами.
Источник: https://7ogorod.ru/kroliki/kletki.html
Комментарии 0